There are so many things we take for
granted, accepting that these things will perform as we expect and anticipate
them to do. The telephone for instance. An airplane taking flight, a computer
giving us information, a simple water meter. There are people who understand
how these things work, but to many of us, the operations of these things are
more miraculous than understood. I have solidly been in the camp of people who
have never taken the time to learn what actually makes a thing work. Until now.
The PLUShouse design is at the end of
the development phase, and we have submitted the project to Oakland for
planning approval. Included in the submittal to Oakland is the design of the
house and the landscape, as well as the design of the recycled grey water
system and the rain water collection system. These water systems were designed
by our water consultant, Design Ecology, based in San Francisco, California.
These guys have been extremely helpful and patient in walking me through the
design of the systems. All diagrams shown are from Design Ecology and are
intended for the PLUShouse.
In very broad strokes, I will explain
how these systems work.
There will be 3 distinct water systems
in the PLUShouse:
1.
Municipal water system, for potable water and water used in sinks and showers.
2.
Grey water system, which recycles all water except food sink and toilet water,
which will be used in irrigation and toilets.
3.
Rain water collection system, which collects rain water from the roof to be
used for irrigation and toilets.
These three water systems are plumbed
independently, but will have the ability to feed into each others' systems to
satisfy the particular demands for water.
Municipal water system
We take indoor plumbing and
municipal-supplied water for granted, but indoor plumbing was extremely rare
until the growth of modern cities in the early 19th century, when better waste
disposal systems were installed to prevent disease. In 1845 the first
screw-down water tap was patented, and indoor plumbing began to be installed in
buildings in the mid-late 19th century.
City-supplied water originated in
ancient civilizations to provide public baths, potable water, and drainage of
wastes. Standardized earthen plumbing pipes appeared in the Indus Valley
civilization by 2700 B.C. The Roman Empire had a vast system of aquaducts to transport water from far away, and used lead
pipes to bring the water into homes, public wells, and fountains.
We now have more advanced technology
and know not to use lead pipes to transport water. But our water can still come
from great distances. Oakland water originates from several sources, much of it
coming from the Mokelumne River in central Sierra Nevada. This water is stored
in the Camanche and Pardee Reservoirs, then transported to Oakland via the
Mokelumne Aquaduct. The water is then routed to each neighborhood and directed
into each building, where it is piped to each specific plumbing fixture.
After municipal water is used it is
collected in sewer laterals that feed into a network of city sewers, where
interceptors (large pipes) carry the water to a treatment plant in Oakland.
Here it goes through primary treatment involving screening and settling out
large particles. The water then moves to secondary treatment where organic
matter is removed and the water is disinfected to remove any remaining
bacteria. After being treated, the water is discharged into the San Francisco
Bay.
Grey water system
If a greywater system is installed in a
building, all used water is separated into either grey water or brown
water. Greywater comprises 50% - 80% of residential "waste"
water, and is essentially all water that has been used, excluding water from
toilets and food sinks. A greywater system, such as the one we will be
installing in the PLUShouse, recycles greywater for irrigation and toilet
water.
The ‘elevator version’ of how a
domestic greywater system works is as follows:
After water has gone down the drain
(from all fixtures except food sinks and toilets), it is routed to a separate
greywater plumbing system. The water passes through a pre-filter, and then
enters a greywater holding tank. This tank can either be above or below ground,
and is sized according to projected water usage. The greywater tank in the
PLUShouse will be a 200 gallon tank (roughly 3x the size of a standard domestic
hot water heater), and will be buried underground. When there is a demand for
water by either the irrigation system or to fill a toilet tank, the stored
greywater will be pumped through a series of filters, then enter the system
requiring water. If there is not enough water in the greywater tank to satisfy
the demand, water will come first from the rain water tank, then from
municipal-supplied water if the rain water tank is empty. According to code,
water can remain in the greywater tank for 24 hrs. If the water is not used
within this time frame it is drained to the city sanitary sewer line. The brown
water, which is not recycled, is directed to the municipal sewer system.
Stormwater runoff is considered sewage,
and goes to a separate facility. Certain cities, including San Francisco, have a
combined system for sanitary sewer and sewage.
The third plumbing system to be
installed in the PLUShouse is the roof water catchment system, or rain water
harvesting system. Similar to municipal water and greywater systems, it has a
very long history, beginning in the 3rd century BC with the farming
communities in present day Pakistan, Afganistan, Iran, and India. Currently, it
is common practice to use rain water for all water needs in many parts of the
world. In California it is only legal to use rain water for irrigation and for
toilets, although in Alaska, Texas, and Ohio rain water can be used in all
applications, including potable water. It is mandated to install water
harvesting systems in new residences in Santa Fe, New Mexico, and in the US
Virgin Islands, as well as in many parts of Australia and other parts of the
world with low precipitation.
![]() |
| Cudo system |
The rain harvesting system we will be
installing in the PLUShouse works in a similar manner to the greywater system,
but the holding tank is much larger and there is no time limit for water to be
held in the tank. The size of the tank is determined by the average annual
rainfall in each specific location. Oakland has an average rainfall of 23.3”
per year, which translates into a 13,000 gal. holding tank (100'x16'x6').
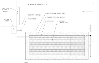
Instead of using a pre-fabricated water tank, we will be using a Cudo modular
storage system, which is basically a series of 2’x2’x2’ plastic milk-type
crates, secured together, wrapped in geotextile, surrounded by sand, and then
wrapped in a polypropylene plastic liner. The crates act only to keep the shape
of the ‘ tank’, which is really just a large bladder buried 2’ underground.
The short version of how rain water
harvesting will work in the PLUShouse:
Rain water from the metal roof will
drain to downspouts; run into underground pipes to the rain water tank
location; pass through a pre-filter; then enter the rain water storage tank.
(Water from the first rainfall of the season gets shed into the sanitary sewer
system, as it has too much debris from the roof). A ‘smart valve’ tells the
tank when water is needed, and the stored rain water is then pumped, or
gravity-fed, from the tank, through a series of filters (backwashing carbon
unit, reverse osmosis system or sand filter, UV filtration), and then to the
desired location (toilet or irrigation). A valve determines if additional
municipal water is needed to meet the demand, which is then supplied if
necessary. As we are planting extreme drought-resistant landscaping, and
anticipate using a total of 50 gal. of water per day, the greywater and rain
harvesting systems should supply 100% of all non-potable water to the
PLUShouse. What a wonderful way to go!
Water is something we tend to take for
granted, expecting it to miraculously come out of a faucet when we turn a knob,
and continue to flow until we close the knob. This is not the case in many
parts of the world, where water must be physically transported from miles away,
and so is used with great care and thought. It seems wasteful to use water for
a single application, when we can easily recycle this water for other uses.
Design Ecology (our design consultant) will be canvassing Oakland to approve
the usage of rainwater not just for irrigation and filling toilet tanks, but to
use rain water as potable water and in all sinks, showers, and appliances. I
will keep you posted on our progress.
next blog topic: how photovoltaic cells (solar panels) work
Lindy Small
Lindy Small









